Aufgaben des Fachbereiches
- Grundstücksangelegenheiten
- Abschluss, Änderung und Aufhebung von
- Verträgen über den Kauf, Verkauf, Schenkung, Übertragung, Überlassung von Grundstücken
- Erbbaurechtsverträgen
- Miet-, Pacht-, Nutzungs- und sonstigen Verträgen
- Bewilligung und Löschung von Grundpfandrechten
- Bewilligung von Rangänderungen, Rangrücktrittserklärungen
- Erteilung der Genehmigung nach der Grundstücksverkehrsordnung in der Fassung der Bekanntmachung des BGBL I Nr. 2221, S. 1 Abs. II Nr. 1
- Erteilung von Negativattesten gemäß Vermögensgesetz (VermG)
- Ausübung von Vorkaufsrechten gem. § 24 ff und 25 ff BauGB zugunsten der Stadt Cottbus
- Vertretung der Stadt Cottbus
- bei der Durchführung der Regelungen des SachenRBerG, Landwirtschaftsanpassungsgesetzes (LwAnpG), Flurbereinigungsgesetz (FlurbG), Verkehrsflächenbereinigungsgesetzes und Schuldrechtsanpassungsgesetzes
- im notariellen Vermittlungsverfahren nach §§ 87 ff SachenRBerG
- bei Liegenschaftsvermessungen, Umlegungsverfahren, Bodenordnungsverfahren, Vermögenszuordnungsverfahren und Grundbuchangelegenheiten und Bestätigung der Grenzniederschriften
- Bestellung von gesetzlichen Vertretern für Grundstückseigentümer unbekannten Aufenthaltes (Art. 233 § 2 Abs. 3 EGBGB)
- Bewirtschaftung von bebauten und unbebauten städtischen Grundstücken
- Abschluss, Änderung und Aufhebung von
Allgemeine Informationen
amtierende Fachbereichsleiterin Immobilien
Sarah
Marose
Stadtverwaltung Cottbus
Karl-Marx-Str. 67
03044
Cottbus
Tel: 0355 612-2960

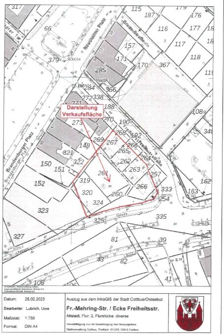
Öffentliche Bekanntmachung: Verkauf einer Liegenschaft Franz-Mehring-Straße/ Ecke Freiheitsstraße im Rahmen eines Konzeptvergabeverfahrens
Die Stadt Cottbus/Chóśebuz beabsichtigt, die nachfolgende Liegenschaft in Cottbus/Chóśebuz Franz-Mehring-Straße/ Ecke Freiheitsstraße, gelegen in der Gemarkung Altstadt, Flur 2, Flurstücke 254, 256, 260, 261,262 (Teilfläche), 263, 265, 267, 320, 324,
Ausschreibung An den Weinbergen/Holbeinstraße
Fachbereich ImmobilienDie Stadt Cottbus/Chóśebuz beabsichtigt, nachfolgende Liegenschaftin Cottbus/Chóśebuz zum Höchstgebot mit Vorgabe Mindestgebot (Verkehrswert) zu veräußern. An den Weinbergen/Holbeinstraße: Bei dem unbebauten Grundstück handelt es sich um baureifes Land in

Cottbus wandelt Garagenpacht in Mietverträge
Die Stadt Cottbus/Chóśebuz wird ab der ersten Juniwoche die derzeitigen Pächterinnen und Pächter von Garagengrundstücken anschreiben und mittels dieses Schreibens die bestehenden Pachtverträge zum 31.12.2025 kündigen. Betroffen sind ca. 5.000

Saalnutzung in der kommunalen Immobilie Spreeperle-Kiekebusch
Im Obergeschoss der Spreeperle-Kiekebusch, gelegen in der Turnstraße 8, 03051 Cottbus, steht Ihnen ein großzügiger Saal mit einer Fläche von 225 m² zur Verfügung. Dieser bietet vielseitige Nutzungsmöglichkeiten für Ihre
Satzungen
Aktualisierung/Änderung: 22.06.2001
- Informationspflichten des Fachbereichs Fachbereich 23 - Immobilien gemäß der Europäischen Datenschutzgrundverordnung (DSGVO)
Die vorliegenden Informationen zur Verarbeitung personenbezogener Daten geben Auskunft über die Pflichtangaben zu den Verarbeitungstätigkeiten der Verantwortlichen.
Grundstücksangelegenheiten (u. a. Miet-, Pacht-, Nutzungs- und sonstigen Verträgen)
Information zur Verarbeitung personenbezogener Daten durch die Stadt Cottbus/Chóśebuz im